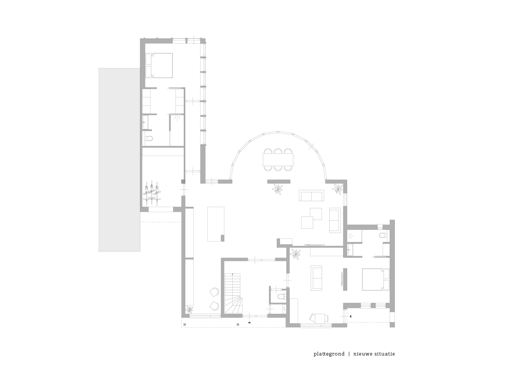
Voor een familiehuis in Chaam hebben we een royale uitbreiding aan weerszijden van hun bestaande woning ontworpen, om ruimten te maken voor drie generaties onder één dak.
Aan de linkerzijde is een royale aanbouw gerealiseerd die zich diep richting de tuin uitstrekt. Deze uitbreiding herbergt het nieuwe ouderlijke verblijf. Grote gevelopeningen aan de tuinzijde zorgen voor een sterke relatie met het groen, waardoor binnen en buiten naadloos in elkaar overvloeien. In de architectuur is zorgvuldig voortgebouwd op de bestaande woning. De woning heeft aan de tuinzijde een kenmerkende ronde serre. Deze verhoudingen, uitstraling en materialiteit is doorgezet in de linker uitbreiding, waarbij met veel glas en houten accenten een lichte, open structuur is gecreëerd die visueel en ruimtelijk in verbinding staat met de tuin.
Aan de rechterzijde van de woning is een compacter en zelfstandig verblijf toegevoegd. Deze uitbreiding is ontworpen als een volwaardige kleine woning. Deze uitbreiding is uitgevoerd in metselwerk, in lijn met het bestaande metselwerk aan de voorzijde van de woning. De tuinzijde is hierbij vrijwel gesloten gehouden, waarmee een duidelijke rust wordt geboden aan de tuinzijde. Aan de straat zijde is een eigen beschut zitplekje ontworpen – een fijne plek met contact naar het dorpse straatleven.
Een huis waar samenleven en privacy perfect in balans zijn.
Voor meer inspiratie, bekijk ook het project “Transformatie woonhuis, Breda”.
Locatie
Opdrachtgever
Uitgevoerd







