In het buitengebied van Chaam, aan de noordzijde van het dorp, is een “ruimte voor ruimte”-kavel beschikbaar gekomen. Het betreft een rustgevende locatie met een vrij uitzicht over de omliggende landerijen. De kavel is gunstig gelegen en kenmerkt zich door de volwassen eiken die zich langs de sloten bevinden.
De woning is ten opzichte van de straat iets teruggeplaatst, zodat deze zich voegt naar de bestaande bebouwing in de omgeving. Gezien het ‘vertuinen’ van het buitengebied, is er gekozen voor een minimale verstening van de voor en achtertuin. Door bomen en plantensoorten voldoende ruimte te bieden, blijft het landelijke karakter van de locatie behouden.
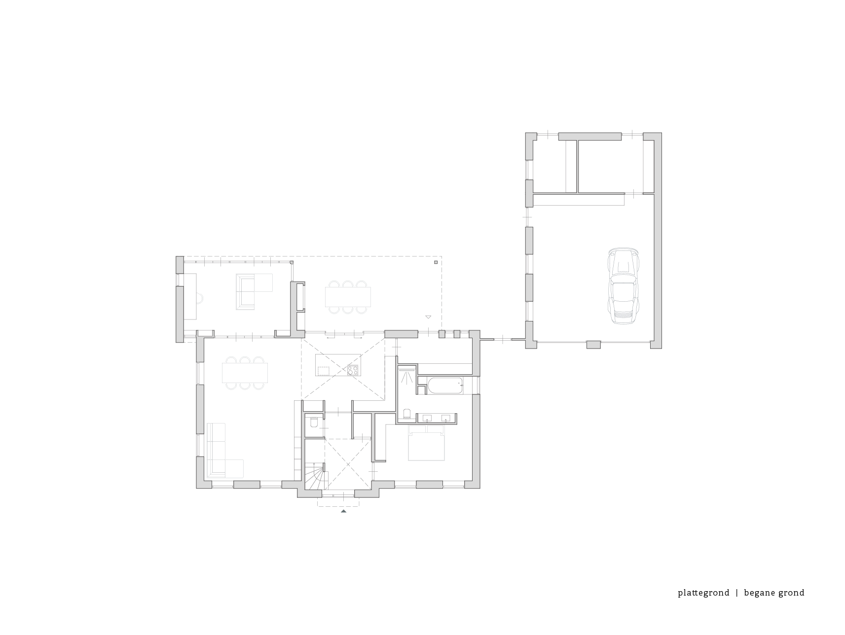
De opdrachtgever heeft een duidelijke voorkeur voor een klassieke notariswoning, waarbij symmetrie het uitgangspunt heeft gevormd voor het ontwerp. Gedurende het ontwerpproces is er een hedendaagse interpretatie gedaan van deze klassieke woningtypologie. De symmetrie in de gevel is duidelijk zichtbaar, onder andere door de topgevel waarin de hoofdentree is gelegd. Aan de achterzijde openen de gevels zich naar de tuin, door middel van ruime gevelopeningen en een tuinkamer, waardoor het uitzicht optimaal kan worden benut. Het interieur is ruimtelijk van opzet, waarbij de toevoeging van een atrium in de leefkeuken resulteert in een dubbel hoge ruimte.








