Aan de rand van het historische centrum van Delft hebben wij de kans gekregen om een bestaand pand met een vloeroppervlak van maar liefst 780 m² volledig te herdenken en opnieuw vorm te geven. In opdracht van drie investeerders, die duidelijke toekomstmogelijkheden zien in deze locatie, zijn wij aan de slag gegaan met een ambitieus herontwikkelingsconcept.
De centrale visie voor dit project was het creëren van een nieuwe, levendige hotspot voor Delft: een plek waar ontmoeting, spel en beleving samenkomen. Het programma bestaat uit een poolcafé, een arcadehal en aanvullende functies die samen zorgen voor een dynamische en toegankelijke totaalervaring. Om deze ambitie waar te maken, hebben we niet alleen gekeken naar de uitstraling en sfeer, maar vooral naar de ruimtelijke organisatie en functionele samenhang van het gebouw.
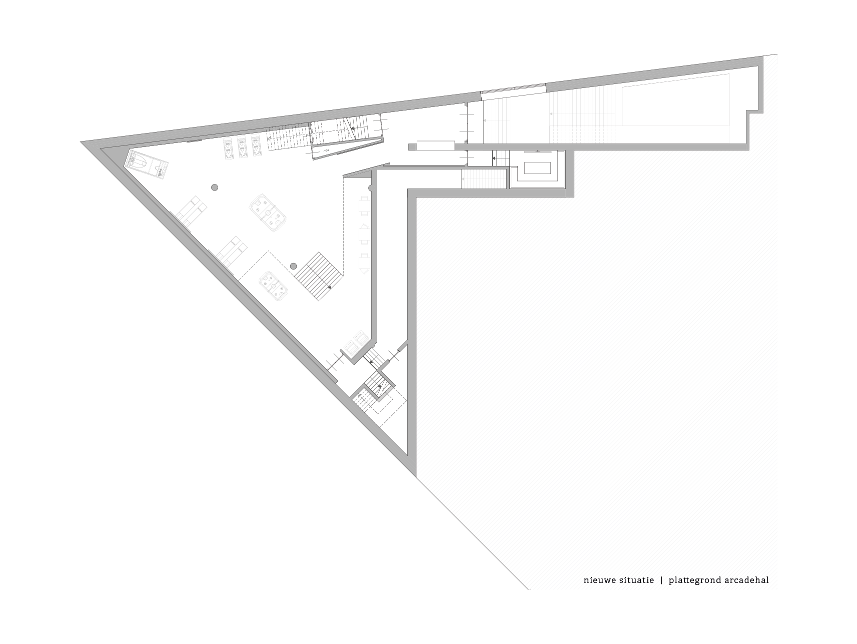
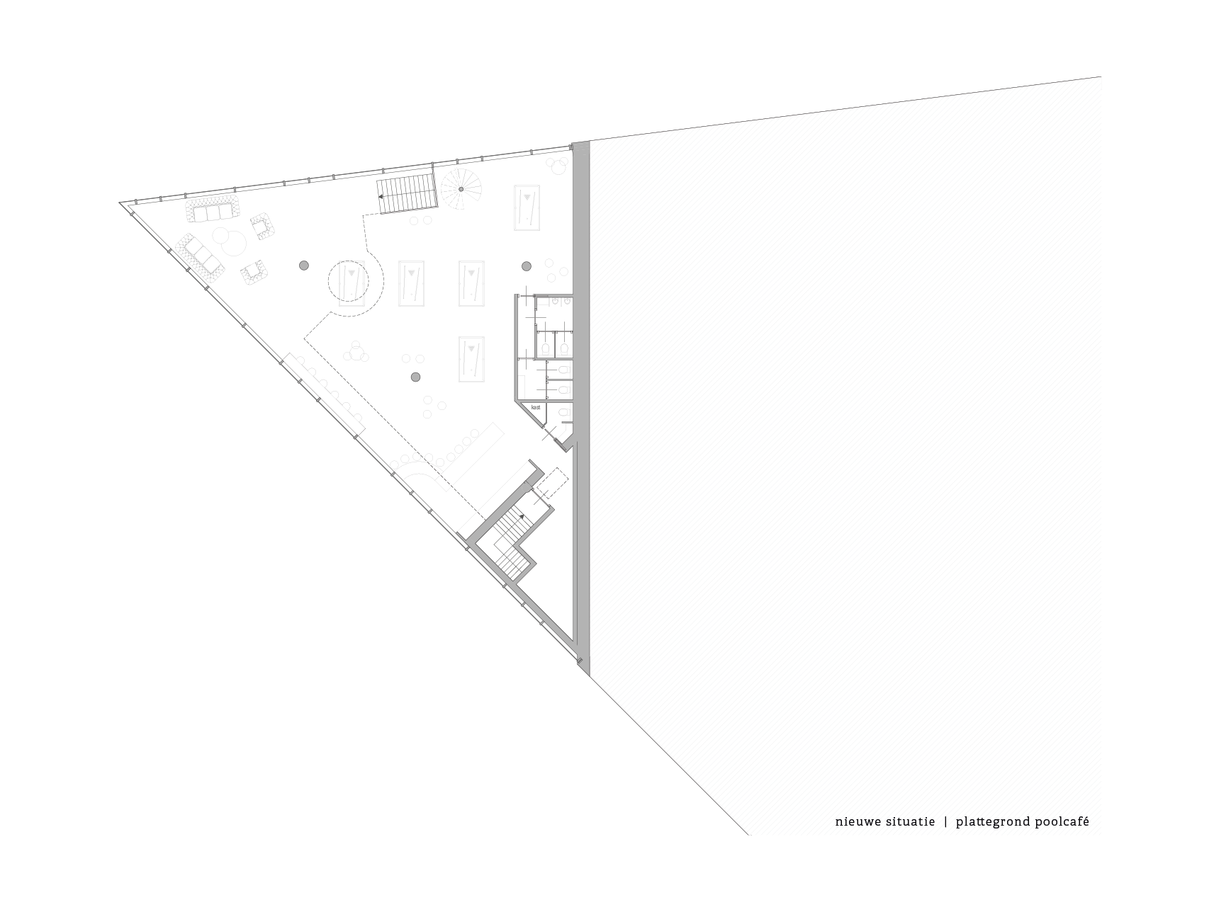
Een belangrijk onderdeel van het ontwerpproces was het zorgvuldig onderzoeken van plattegrondoplossingen. Hoe kunnen verschillende functies elkaar versterken? Hoe zorg je voor logische routing, voldoende overzicht en een prettige verblijfsduur voor uiteenlopende doelgroepen? Door het toevoegen van extra verdiepingsvloeren en het slim stapelen en zoneren van functies is een efficiënt en uitnodigend geheel ontstaan, dat optimaal gebruikmaakt van de beschikbare ruimte.
Daarnaast speelde de ligging aan de rand van het centrum een cruciale rol in het ontwerp. Het gebouw is zo ingericht dat het niet alleen een bestemming op zichzelf is, maar ook bijdraagt aan de levendigheid van dit deel van Delft. Transparantie, zichtlijnen en een duidelijke entree zorgen ervoor dat het pand uitnodigt tot binnenkomen en een vanzelfsprekende schakel vormt tussen het centrum en de omliggende gebieden.
Wij hebben het volledige architectonische ontwerp verzorgd en het pand getransformeerd tot een eigentijdse, karaktervolle plek met een sterke identiteit. Een ontwerp waarin functionaliteit, beleving en stedelijke context samenkomen.
Op naar de volgende fase in het traject. Hier wordt een bijzondere nieuwe plek aan Delft toegevoegd — een bestemming die blijft verrassen en waar stad en ontspanning elkaar ontmoeten.
Locatie
Opdrachtgever
Uitgevoerd
: Delft
: Particuliere investeerders
: In voorbereiding















