Voor dit project onderzochten wij de herbestemmingsmogelijkheden van een monumentaal stationsgebouw uit 1867, gerealiseerd bij de aanleg van de spoorlijn Tilburg – Turnhout. Het karakteristieke pand vormt een waardevol historisch ankerpunt en bezit een heldere, rationele opzet die nog grotendeels intact is gebleven.
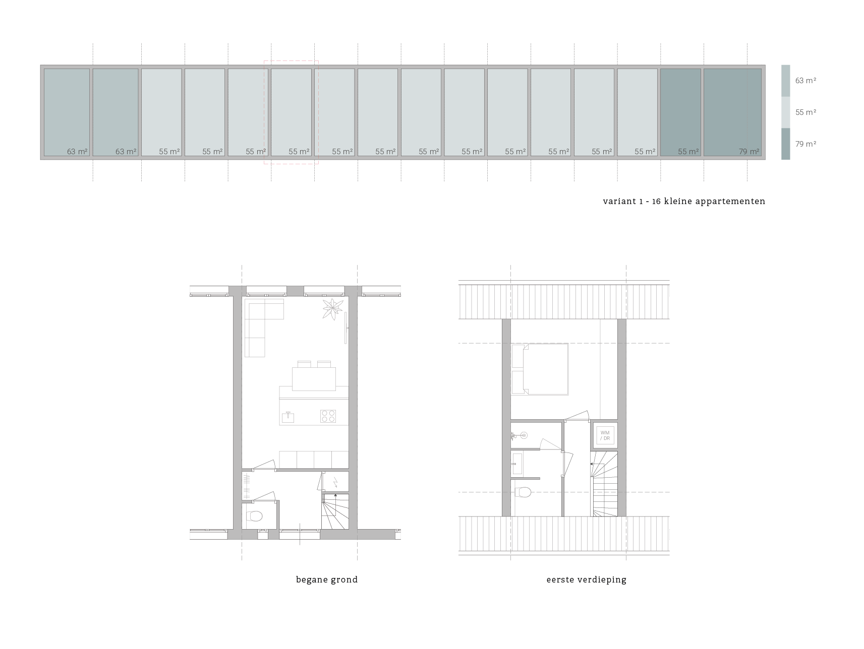
In opdracht van Thuiz Makelaardij hebben wij een haalbaarheidsstudie uitgevoerd naar de mogelijkheden voor woningbouw binnen dit monument. De centrale vraag was of het gebouw geschikt en rendabel te transformeren zou zijn naar appartementen, en zo ja, in welke omvang en differentiatie. Uitgangspunt daarbij was het respecteren van de bestaande structuur. Deze bleek zich uitstekend te lenen voor een indeling vanuit een logisch stramien.
Op basis hiervan hebben wij varianten ontwikkeld voor kleine, middelgrote en royale appartementen, waarbij zowel het monumentale karakter als hedendaags wooncomfort centraal stonden. Het onderzoek liet zien dat het gebouw een hoogwaardige woonbestemming had kunnen krijgen, met behoud van zijn historische identiteit.
Hoewel het pand uiteindelijk een andere eigenaar en invulling heeft gekregen, blijft dit project voor ons een illustratief voorbeeld van de potentie die schuilt in monumentaal erfgoed en de kansen die herbestemming kan bieden wanneer historie en toekomst zorgvuldig met elkaar worden verbonden.
Locatie
Opdrachtgever
Uitgevoerd








