Dit ontwerpvoorstel beoogt de ontwikkeling van een nieuw dorpshart in Chaam, met behoud en herbestemming van basisschool De Driesprong op haar huidige locatie. Het plan richt zich op het versterken van de bestaande historische context, waaronder de H. Antonius Abtkerk, het Taxandriagebouw en dorpscafé Het Chaamse Wapen, tot een samenhangend ensemble rond een centrale ontmoetingsplek. Dit biedt een alternatief voor de voorgenomen verplaatsing van de basisschool naar de rand van het dorp en pleit voor behoud van voorzieningen in de dorpskern als drager van sociale en culturele samenhang.
De locatie, een voormalig parochiekavel in het hart van Chaam, heeft historische waarde en biedt potentie als verbindend centrum. Door strategische sloop, herverkaveling en nieuwe toevoegingen ontstaat een kleinschalig, toekomstbestendig centrum waar educatie, cultuur en ontmoeting samenkomen. In contrast met eerdere ontwikkelingen, zoals het Brouwerijplein dat zijn belofte als dorpscentrum niet heeft waargemaakt, biedt dit voorstel een kleinschalig, toekomstbestendig alternatief, geworteld in de ruimtelijke identiteit van Chaam.
In dit ontwerpvoorstel is gewerkt aan een integrale herstructurering van een versnipperd dorpsgebied tot een samenhangend stedenbouwkundig en landschappelijk ensemble. Op basis van grondige locatieanalyses zijn functies herverdeeld, routes geoptimaliseerd en harde grenzen verzacht, met als doel de ruimtelijke en sociale samenhang te versterken.
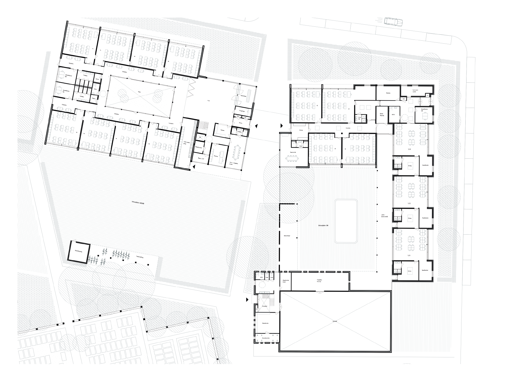
De nieuwe opzet verenigt educatie, cultuur en ontmoeting in een groen dorpshart. De gefuseerde basisschool is uitgebreid en heringericht, met een nieuwe gymzaal als verbindend element. De oude meisjesschool krijgt een functie als peuterspeelzaal en kinderdagverblijf; bibliotheek, buurthuis en theaterzaal zijn ondergebracht in de kerk, die zo een centrale rol behoudt in het dorpsleven.
Het plan voorziet in de transformatie van het kerkhof tot een toekomstig dorpspark, verbonden via een netwerk van voet- en fietspaden. Door zorgvuldig ingrepen te doen in het bestaande weefsel – sloop, renovatie en nieuwbouw – ontstaat een ensemble waarin archetypische dorpsgebouwen opnieuw tot hun recht komen.
Architectonisch is ingezet op respectvolle renovatie van de wederopbouwschool en toevoegingen in samenhang met het bestaande. De nieuwe volumes, zoals de optopping van de bovenbouw en de luifels, versterken de heldere structuur en bevorderen overzicht, oriëntatie en gebruikscomfort.
Deze herontwikkeling levert niet alleen ruimtelijke kwaliteit, maar ook een sociaal gedragen plek waar alle generaties samenkomen in een veilige, groene en betekenisvolle leefomgeving.














